请选择你所在的地区
- 省份
- 城市
- 江西
- 香港
- 澳门
- 台湾
- 北京
- 上海
- 天津
- 重庆
- 河北
- 山西
- 河南
- 辽宁
- 吉林
- 黑龙江
- 内蒙古
- 江苏
- 山东
- 安徽
- 浙江
- 福建
- 湖北
- 湖南
- 广东
- 广西
- 四川
- 海南
- 贵州
- 云南
- 西藏
- 陕西
- 甘肃
- 青海
- 宁夏
- 新疆
安卓下载
苹果下载
普通国产石材做幕墙,也能如此高级!
2022-12-14
众所周知,我国石材资源丰富,花岗岩石材品种颇多,无论是普通的黑白灰,还是多彩的黄绿红,都能在石材市场上看到。而且在各大工程场所应用广泛。近年来各种自建别墅风靡,在外墙的石材上也很多选择了国产的黄色,红色花岗岩。
在一些高端的酒店、写字楼项目,预算充足,幕墙石材大多选用昂贵的进口花岗岩。一些巴西、印度等国的进口花岗岩品种,确实色彩纹理比较独特漂亮。但是便宜的国产花岗岩就不能做出好的幕墙效果了吗?今天分享一个星级酒店的石材幕墙设计。采用的是国产的虾红石材,你看看觉得效果怎么样?
-
这是一个非常成功的、低造价、高完成度的作品——成都协信希尔顿酒店。项目立项之时是作为整个片区的,综合开发的一部分。当时,整体规划是40万平米左右的住宅配套一个五星级酒店和一个甲级写字楼,以及一条商业街。作为一个国际五星级的酒店,一开始外立面的造价并不低。但一期开发完成之后,甲方并未获得后续土地,这样一来这个酒店必须要紧抠造价。外立面只有900块的单方预算,这个时候要么改外墙材料,要么就是想办法解决问题。
01.
石材的选择
首先设计师和甲方一致的目标是
保留石材幕墙,在900的造价下
改变原来开放式幕墙的做法采用打胶
而其他地方不太能够再省钱
只能在石材本身上去考虑
最终120块钱单方的石材
可以选择的只有
颜色发红并且色差极大的“虾红”
这个石材的颜色粉红不符合本项目的要求
但做成荔枝面能够接近灰色花岗石
并且能够有效地减少色差
虾红荔枝面
02.
立面的策略
面对色差较大、质感不佳的石材
设计上应该要量身定做
首先尽量避免大面的石材做法
设计上用“线条”的方式来处理
这个不仅符合酒店标准窗的特性
而且将石材的材质表达出来又避免了色差
通过线条感避免低价石材的弱点
其次在不可避免的大面的石材的地方
使用“凹槽”加“线条”的方式来处理
并且采用不同面处理的石材形成层次感
在石材的划分上采用“错缝”“横竖缝
对应不同表面的石材”等手法
每几层一个光面线条“勾缝”
(@lkg)
考究的石材面
03.
立面的策略
对于一个国际品牌的五星级酒店
如何拥有其独特的气质
是摆在设计者面前的一个课题
尽管造价很低,但是经过精心的设计
依然可以达到低调奢华的要求
在整个项目中
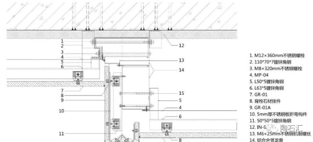
三角形的小柱是一个最主要的语言
除了“变面为线”处理廉价石材的色差
更为重要的是小三角的细柱
赋予整个建筑一种精致感和独特的气质
三角面增加了立面的层次感
在阳光下富有阴影关系
小三角的标准单元与转角单元
施工中的转角单元(@lkg)
入口处三棱面石材细柱的处理
除了标准单元的三棱之外
窗框同样处理成两棱
整个建筑语汇统一并且做法一致
对于施工的管控也相对容易
(低造价幕墙很难找到大型的幕墙施工企业)
窗框处的石材纤细有力
是本项目精致程度的最大体现
纤细的两棱石材窗框与三棱的细柱形成统一且有变化的韵律
施工中的窗框(@lkg)
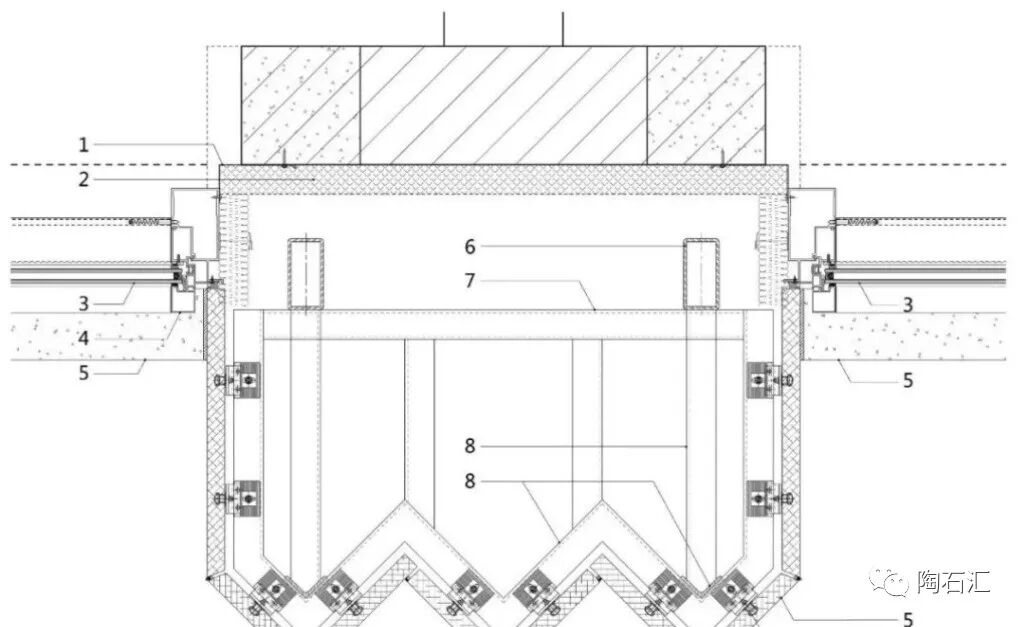
细块的石材如果按照常规的45度拼
会出现很多的豁边
并且将交界面直接暴露在外
节点设计中
将两块石材采用90度半咬合的拼接
利用花岗石本身的硬度
形成一条小凹槽
而不是一味去追求难以达到的“尖”
90度半咬合的拼接
点赞 580 写留言
0/100
