Hi~欢迎来到陶石汇!
北京

请选择你所在的地区

  • 省份
  • 城市
  • 江西
  • 香港
  • 澳门
  • 台湾
  • 北京
  • 上海
  • 天津
  • 重庆
  • 河北
  • 山西
  • 河南
  • 辽宁
  • 吉林
  • 黑龙江
  • 内蒙古
  • 江苏
  • 山东
  • 安徽
  • 浙江
  • 福建
  • 湖北
  • 湖南
  • 广东
  • 广西
  • 四川
  • 海南
  • 贵州
  • 云南
  • 西藏
  • 陕西
  • 甘肃
  • 青海
  • 宁夏
  • 新疆
请先选择省份
安卓下载 苹果下载
全国统一服务热线 400-0658-029 133-0925-8589

首页 > 资讯 > 详情

石材案例 | 静兰湾美学馆

2022-12-23


石材别墅设计


项目名称|静兰湾美学馆 空间设计|李智翔、葛祝纬、郭瑞文、张宇辰、黄雅琳 /水相设计  软装设计|白丽雪/万有引力+水相设计 项目业主|华润置地华南大区 业主团队|张水波、王荣、彭越、武齐毅、蒋琳婕、谭立仁、王红明、冯洪波 项目地点|中国 柳州市室内面积|1705㎡空间格局|接待区、洽谈区、品牌展示区、多媒体区、VIP室、办公室、卫生区、功能区 设计时间|2021.11~2022.02 施工时间|2022.03~2022.07 主要材料|亮光大理石、凿面大理石、矿物漆、红色烤漆、染黑天然旧木、橡木钢刷直纹木皮  项目摄影|吴鉴泉 


文人之山水建筑之山水


本质内蕴时态催化物的表现力
柳州素以「奇石甲天下」闻名,此奇包含山石、水石、土石、洞石、岩石等数类,各有其韵,仿佛天地万年来的絮语均藏在石的天然姿态,是历史亦成艺术。无独有偶,物派艺术向来推崇未加工的自然物——巨石、土砾、枯木——向往本质即是最美的精神,认为自然之物即便放入建筑场域,仍能与空间激荡能量及艺术作用。


设计师以此为灵感,入口以原石切砌山谷纵深,柜台深凿石面不仅作为建筑立面,亦为山壁写意陈列,将自然奇石姿态化为体验自然的情绪转折;



00:26




山前一泓深邃平静的氤氲江岸,映照峰林起伏与偶尔掠过鸟飞人影。设计师想像穿梭建筑内部如登山的修习,穿过枝叶相掩、巨石遮天的隧道或于崖下仰眺山峰高耸,感受个人心境转折及不执着物象的澹然。


捨具象细节以轮廓迂迴出意境


丹青墨晕映照万变亦永恒的光彩

艺术装置施工过程


△一层平面图
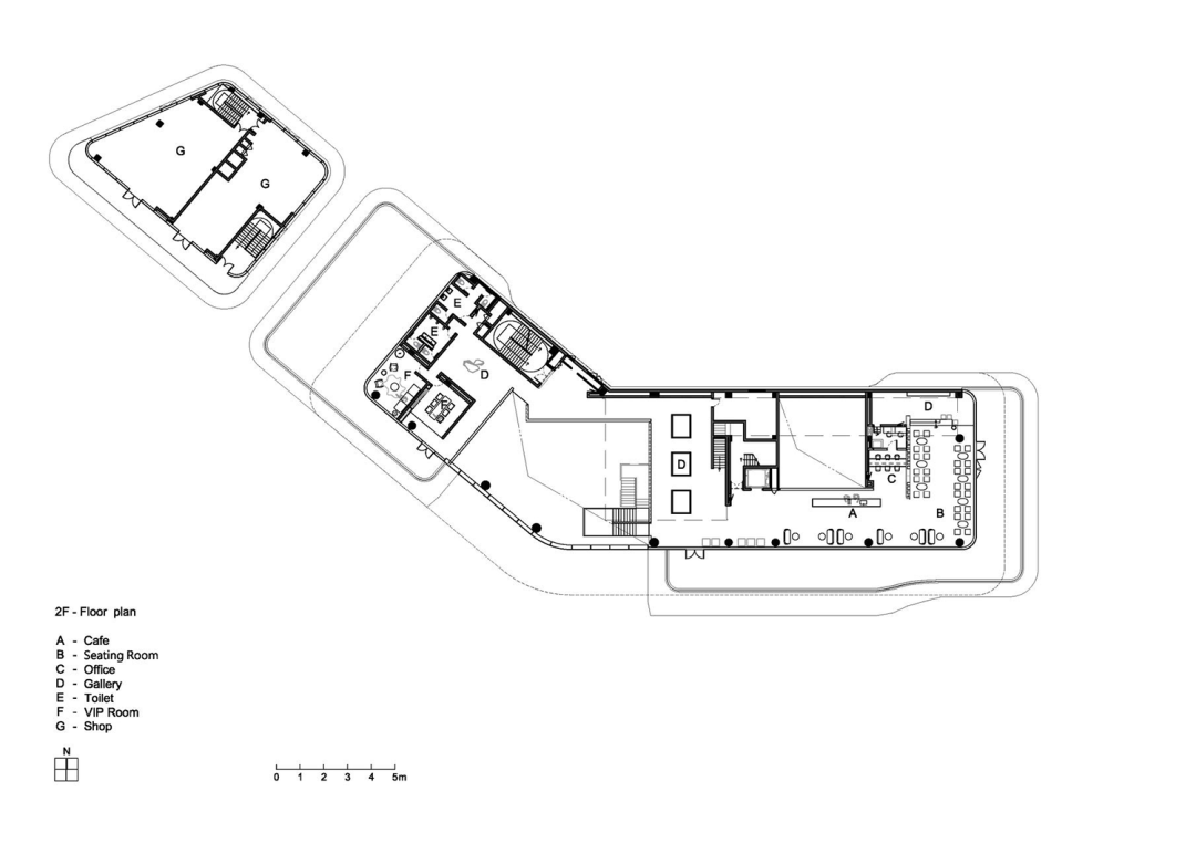
△二层平面图
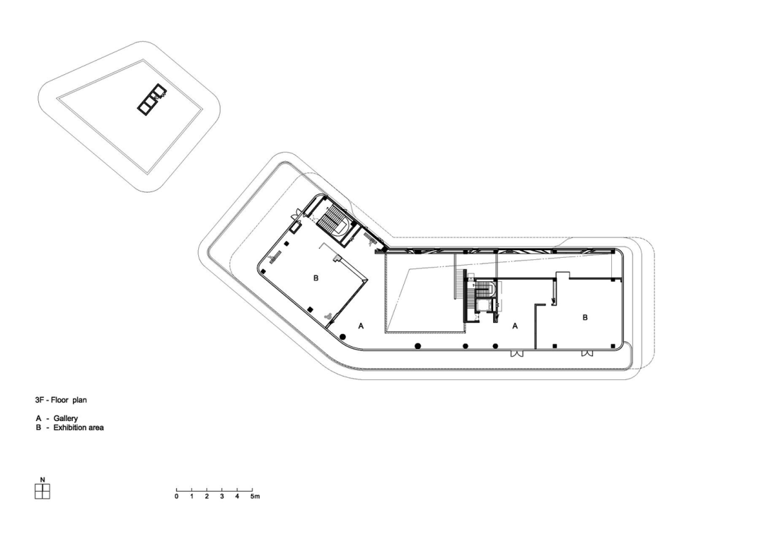
△三层平面图

来源:Waterfrom Design



精选留言

点赞 601 写留言

0/100

友情链接
陶石汇 安卓
陶石汇 苹果
超级找客 安卓
超级找客 苹果