Hi~欢迎来到陶石汇!
北京

请选择你所在的地区

  • 省份
  • 城市
  • 江西
  • 香港
  • 澳门
  • 台湾
  • 北京
  • 上海
  • 天津
  • 重庆
  • 河北
  • 山西
  • 河南
  • 辽宁
  • 吉林
  • 黑龙江
  • 内蒙古
  • 江苏
  • 山东
  • 安徽
  • 浙江
  • 福建
  • 湖北
  • 湖南
  • 广东
  • 广西
  • 四川
  • 海南
  • 贵州
  • 云南
  • 西藏
  • 陕西
  • 甘肃
  • 青海
  • 宁夏
  • 新疆
请先选择省份
安卓下载 苹果下载
全国统一服务热线 400-0658-029 133-0925-8589

首页 > 资讯 > 详情

装修案例| 现代轻奢风格的空间设计

2022-12-29


当代住宅空间的需求逐步精细化,家不再是地位身份的象征,是个人爱好的安放处,是孩子成长的庇护所。


面对品质生活体验的追求,延伸现代轻奢风格的空间设计,探索多元化的生活场景。

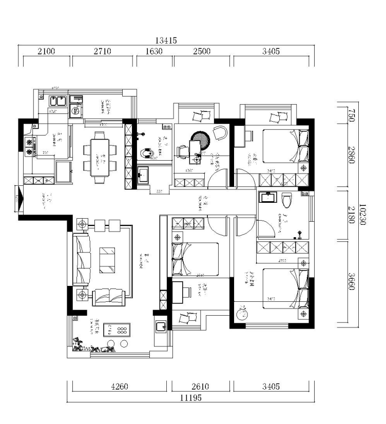
平面布置图

Equinx

楼盘地址:长房星昇公馆

户型面积:140㎡

装修风格:现代轻奢


装修案例


整个客厅呈现当代奢华的缩影,动听的音乐与静默的摆件互动,简约的搭配下营造空间的温和旋律。

敞亮的空间足以打造那些的独立小空间,小沙发在阳台,或者在飘窗,阅读休闲或是生活用度,都能带来舒适而低调的体验。

满墙的美酒悉数尽显,与佳友小酌一杯,品味岁月沉淀的精华。

治愈的米色调环绕整个家,在干净的配色下迎接透亮和清净,布艺延续低奢格调,简洁而不失品味。

用简洁的配色和材质重新定义品质生活,奢华之间,处处透露着细腻的生活气息。


精选留言

点赞 619 写留言

0/100

友情链接
陶石汇 安卓
陶石汇 苹果
超级找客 安卓
超级找客 苹果