Hi~欢迎来到陶石汇!
北京

请选择你所在的地区

  • 省份
  • 城市
  • 江西
  • 香港
  • 澳门
  • 台湾
  • 北京
  • 上海
  • 天津
  • 重庆
  • 河北
  • 山西
  • 河南
  • 辽宁
  • 吉林
  • 黑龙江
  • 内蒙古
  • 江苏
  • 山东
  • 安徽
  • 浙江
  • 福建
  • 湖北
  • 湖南
  • 广东
  • 广西
  • 四川
  • 海南
  • 贵州
  • 云南
  • 西藏
  • 陕西
  • 甘肃
  • 青海
  • 宁夏
  • 新疆
请先选择省份
安卓下载 苹果下载
全国统一服务热线 400-0658-029 133-0925-8589

首页 > 资讯 > 详情

石材收口问题总结,看这一篇就够了!

2023-01-03

01

本文将全面为你解答以下问题:

1、针对石材结构的收口问题时,应怎样办?
2、石材本身的收口有哪些方式?
3、石材与其他材料的收口有哪些技巧?

01

收口处理总的规律

无论你面对任何收口问题,都有一套可遵守的规律,其中,你必需要遵守以下规律。


“全部收口,尽可能的放在阴角,即使在平面上收口,也尽量不要在阳角收口。假如不得以在阳角收口时,也应想方法把阳角转换成平面或阴角。”在这个规律的准则上,你应分以下几个步骤去剖析收边收口的问题。
第一步:谁和谁收?


第一步一定是理解谁和谁收口;明白收口的是什么材料跟什么材料、谁来收谁的口、谁来压谁、在哪儿收口、假如不收口会怎样?能不能改动收口方式。明白这些必须条件后,才知道判别收口的办法。

第二步:适合什么收口形式?


任何剖析都是这样,只要当你理解它的来龙去脉以及环境要素后,才敢动用卓有成效的办法论对它快速处置。在你明白了谁跟谁收口后,就能够从以下这几种方式中,选择合适的一种以至是多种方式的组合,用于处理你面对的收口问题。


现在,我们按照这套理论,通过以下文字介绍,来让你搞懂常见“石材”的收口方法。

02

石材自己收口方法

依据第一步,我把石材的收口方法划分为“石材与石材收口”与“石材与其他材料收口”两部分来讲解,下面先看石材与石材的收口这种类型:
 一、石材平面收口 

△石材太大需做背筋加固

△石材大板切割1、石材的原料最大边长一般不会长于3米。从自然石材的材料限制和人体工程学的角度来看,质地较软的石材(如大理石、砂岩等)单块的规格不倡议>800mm*800mm;若大于该尺度,需在石材背部增加背筋来维护石材不开裂。质地较硬的石材(如花岗岩),单块的规格不倡议>1000mm*1000mm。同样,大于该尺寸,需在石材背部做背筋维护。2、不管采用干挂还是粘贴的装置方式,只需墙面采用石材时,在设计允许的前提下,倡议做石材留缝的处置。而在设计不允许的状况下,则采用密缝处置。由此可见,石材与石材的收口方法,主要是以「留缝」和「密缝」最常见,就如下面这些方式一样:

△石材U字缝收口

△石材V字缝收口

△石材干明缝收口

△石材嵌胶缝收口
二、石材阳角收口 1、石材的本身物理性能稳定,并不会像木饰面一样由于热胀冷缩而变形。所以,在石材的阳角收口时,只需选择好合理的收口方法,并在装置时防止碰撞,就能很好的防止后期呈现质量问题。


△台面阳角≤90°的错误收口方式2、提到石材的阳角,第一时间应当想到各类石材台面的阳角处置。如洗面台、吧台、柜台等,在设计石材台面时,切记不能将石材的阳角做成≤90°的锐角。不然,除了石材后期会碰撞开裂外,还会呈现伤人的状况,所以,在设计石材的台面阳角时,应当采用下列做法。


以上随意一款台面石材的阳角收口方法都能很好的躲避掉直接45°收口的危害,而这些石材阳角的收口方法,由于常用于横向的石材结构中,所以,又被我称为「横向阳角收口」。既然有横向阳角收口方法,就必然有竖向阳角收口的方法。在我的定义里,用于墙柱面竖向转角处的石材收口方法,就叫「竖向阳角收口」。这种石材的收口方法,我想你应该不陌生。下面我就按“常用”和“不常用”两个角度,各挑3种最典型的收口方式为你讲解。常用的石材阳角收口方法:
1、海棠角


说明:图中绿色为石材,石材上的红色区域为见光面,需要做外表处置;白色缝隙为填缝剂,多数状况下运用接近色填缝;颜色越深的石材此处越不明显。2、倒角


3、45°斜边


不常用的石材阳角收口方式:
4、圆角边


5、法国边


6、5x5mm槽


你学习完这两种阳角的处理方法后,我还要告诉你一个设计圈的现象:“现在网络上很多课程在讲到石材阳角收口时,千篇一律的将用于空间构造中的「竖向阳角收口」直接应用在石材台面的「横向阳角收口」上。”就如下图所示:


△洗面台采用海棠角的做法上图就是典型的石材收口错误。在石材台面应用这样收口除了影响美观、会刮伤人外,更重要的是后期保洁和维护时将十分费事,时间长了,收口槽内会滋生各种各样的细菌,非常不卫生。而这一切的源头,就仅仅是因为石材收口方式的错误。希望你下次在选择任何石材的收口方式时,应当思索它们的适用场景与范围,触类旁通,而不是随声附和。
三、石材的阳角收口
石材与石材的阴角收口相对于阳角而言,其方式要略微单逐个些,主要有以下2种收口方式:1、5X5mm横向槽


2、石材密缝收口


这里需强调一个要点,当石材墙面采用U字缝的方式收口时,由于两边都有缝隙,就会在阴角处呈现下图这样有空隙的收口缺陷。所以,为了避免这个问题,碰到这种情况的墙面构造时,应当做以下形式深化处理。


△不当的收口方式造成阴角处空洞

△石材留槽时的阴角收口方式这个要点是很多设计师都会忽视的,下次请你再碰到有V字缝的空隙时,去观察下它的阴角处收口,会有惊叹发生的。


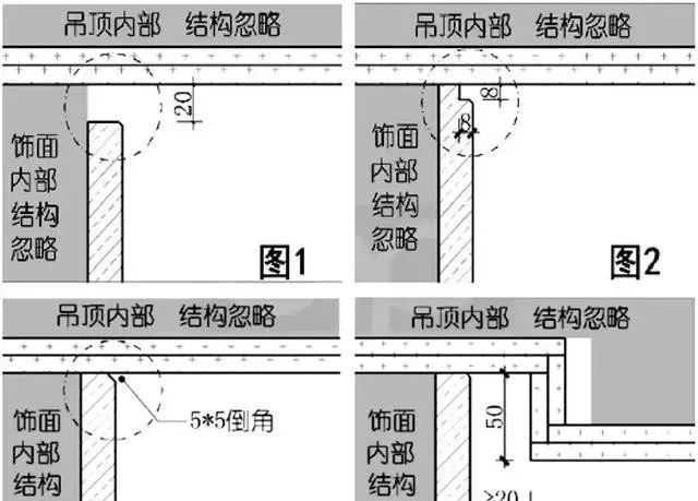
△石材粘贴时,与吊顶的常规收口方式墙面石材与天花吊顶的收口,为了节约本钱,墙面石材通常状况下,采用干挂时,会做到比吊顶位高50mm。采用粘贴时,会用吊顶位来压石材的做法也较为常见。就如下图所示:


△石材干挂时,与吊顶的常规收口方式


△石材与石材踢脚线收口

03.

石材与其他材料的收口

上面花了大量时间,依据“收口收边”的规则,重点讲了石材与石材自身的收口情况。你了解了这些收口方法和规则后,再来理解石材与其他材料的收口时,将变得容易很多。


△对撞与错缝在不同材料收口间的应用由于不同材料的韧性,延展性,防湿性等性能均不同,所以,不同材料之间,不建议使用对撞(密缝)的方法来收口。下面请你使用“收边收口”这个工具,以及依据我们提到的所有收口原则,来对下面这些收口方式进行理解与记忆。
 1、石材与木饰面收口 


△阴角收口



△平面收口
 2、石材与壁纸/乳胶漆收口 

△平面收口
 3、石材与瓷砖收口 

△阳角收口

△平面收口
 4、石材与镜子/玻璃收口 


 5、石材与木地板收口 


 6、石材与地毯收口 


 7、石材门套收口 


 8、石材与防火卷帘收口 


虽然材料各种各样,无穷无尽。但是,有了这个“收边收口”工具后,面对各种各样的材料收口,你需要做的仅仅只是套用几个简单的原则以及尽可能的收集与记忆少数正确且通用的收口方式。1、无论面对什么类型的材料收口方法,都可以使用“收边收口”的工具以及几条简单的原则来处理。
2、石材与石材收口,可以分为平面收口,阴阳角收口三大部分,并结合收边收口模型来理解与记忆。
3、通过“收边收口”的工具,再去理解与记忆石材与其他材质的收口关系,将变得有规律可循

精选留言

点赞 671 写留言

0/100

友情链接
陶石汇 安卓
陶石汇 苹果
超级找客 安卓
超级找客 苹果
0.130806s