请选择你所在的地区
- 省份
- 城市
- 江西
- 香港
- 澳门
- 台湾
- 北京
- 上海
- 天津
- 重庆
- 河北
- 山西
- 河南
- 辽宁
- 吉林
- 黑龙江
- 内蒙古
- 江苏
- 山东
- 安徽
- 浙江
- 福建
- 湖北
- 湖南
- 广东
- 广西
- 四川
- 海南
- 贵州
- 云南
- 西藏
- 陕西
- 甘肃
- 青海
- 宁夏
- 新疆
安卓下载
苹果下载
关于石材幕墙的施工方法及 6 种较典型的节点构造
2023-03-14
在建筑外墙装饰中,石材幕墙已占有相当大的比例。而且石材幕墙应用的高度越来越高,体量越来越大;造价越来越低,造型越来越复杂,对安装施工工艺要求越来越严。
石材幕墙的安装方法有干挂和湿贴两种
干挂石材工艺就是采用金属配件将石材板材、异型材牢固悬挂在建筑物结构体上,从而形成装饰面的一种装饰装修施工方法;
湿贴石材幕墙则采用传统的水泥砂浆作为黏结剂将石材固定在建筑物结构体上的装饰装修施工方法。
干挂石材工艺包括插销(针)式、蝴蝶(上下翻、两头翻)式、蝴形背卡式、焊接(“T”形件)、背栓式等。
下面简单介绍目前常用的石材幕墙施工方法其优点对比分析以及石材幕墙的新技术发展
一、石材湿贴的具体操作方法
石材湿贴是传统的石材安装技术,就是石材背后用30-40 毫米的水泥砂浆粘贴。
① 清除基层表面灰尘、杂物,对表面光滑平整的基体进行凿毛处理,使表面粗糙,并用钢丝刷清刷,用水冲洗。
② 检查基层表面的垂直度、平整度和轴线及标高位置,不符合要求要重新处理。
③ 在充分湿润的基体上抹砂浆找平层,并对平整度、垂直度进行检查。
④ 用线锤吊线确定板材外皮与抹平面的距离,同时按标高弹出水平线,确定板材的分块线。
⑤ 将清洗干净,经湿润阴干后的板材背面均匀抹上水泥灰浆,依据水平线进行镶贴,并随时用靠尺找平拉直。
二、石材干挂方式分类和性能比较
石材干挂是利用耐腐蚀的螺栓和耐腐蚀的柔性连接件,将大理石、花岗石等饰面石材干挂在建筑结构的外表面,石材与结构之间留出 40-50 毫米的空腔,用此工艺做成的饰面,在风力和地震力的作用下允许产生适量的变位,以吸收部分风力和地震力,而不致出现裂纹和脱落。
对干挂花岗石幕墙各种节点的构造设计特点进行比较,通过抗震试验分析不同节点构造设计的特色。
三、典型干挂花岗石节点设计
随着幕墙技术的发展及幕墙技术规范的建立,干挂花岗石的工艺日趋完善,目前有如下 6 种较典型的节点构造设计。
1、钢销式干挂法
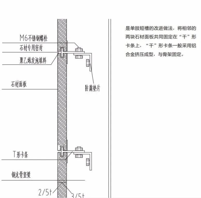
2、单肢短槽式干挂法
3、双肢短槽式干挂法
4、通槽式干挂法
原理与单肢短槽式干挂法相近,只是采用通长卡条,上下开通槽。在单元式石材幕墙中更多采用这种干挂法。
5、小单元式干挂法
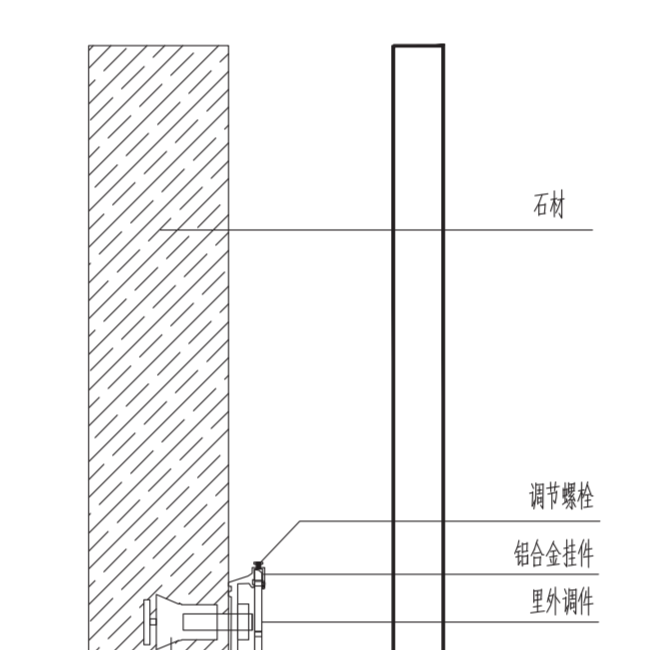
6、背栓式干挂法
在石材面板的背面采用专用拓孔设备钻孔、拓孔,然后安装无应力螺栓锚固在石材背面,再通过铝合金卡件与骨架连接。
四、抗震性能分析
石材幕墙构件由石材面板和金属框架等组成,其变形能力很小,只能通过弹性连接来避免主体结构大侧移的影响。
因此认真研究分析石材面板与骨架的连接方式对于提高石材幕墙的平面内位移变形性能和抗震性能非常重要。
幕墙抗震设计要求,在常遇地震作用下,幕墙应保持完好;在中震作用下幕墙不应有严重破损,允许部分面板破碎,经修理后仍然可以使用;在罕遇地震作用下,幕墙骨架不应脱落、倒塌。
从节点构造来看,钢销式、短槽式、通槽式等石材面板均为共同固定在挂件上,面板与骨架连接成整体,不利于位移变形。在地震作用下,石材面板缺乏足够的活动余地,会随着骨架同步振动。
其抗震措施仅依靠骨架与主体结构之间的活动连接来解决。小单元式及背栓式石材面板自成连接体系,相邻板块间不传递荷载作用,块板与骨架间设计成活动连接,使面板有较大的位移变形空间。因此具备更好的位移变形性能和抗震性能。
网络申明:文章来源于其他网站的转摘,可能部分来源和作者名字不详细。如果侵犯您的个人利益,请来电或者来信告之,我们将及时删除并表示歉意。
·END·
点赞 716 写留言
0/100
