请选择你所在的地区
- 省份
- 城市
- 江西
- 香港
- 澳门
- 台湾
- 北京
- 上海
- 天津
- 重庆
- 河北
- 山西
- 河南
- 辽宁
- 吉林
- 黑龙江
- 内蒙古
- 江苏
- 山东
- 安徽
- 浙江
- 福建
- 湖北
- 湖南
- 广东
- 广西
- 四川
- 海南
- 贵州
- 云南
- 西藏
- 陕西
- 甘肃
- 青海
- 宁夏
- 新疆
安卓下载
苹果下载
爵士白大理石家装案例 | 简约整洁
2023-08-16
Area | 户型面积:280㎡
Location | 项目地点:中国 浙江 · 乐清
Arte mundi | 书香门地美学地板
Interior Design | 室内设计:铭人空间-李岳龙
本案为一家四口的80后家庭,男女主人偏爱黑灰色糸沉稳所带来的知性美,并喜欢简洁且实用性较强的空间体验。一女一子性格活泼、求知欲强,喜欢交流并善于言表。男女主人想以此空间给予孩子们更多的陪伴。室内使用了爵士白大理石,让空间更加优雅。
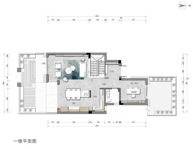
〣平面设计图 PLAN DESIGN
当初入原始空间时,便觉细长的中间套户型所带来的采光与通风效应差,对人居感受的影响;又觉窗外盛夏那一片绿荫的美,是自然所赠予的颜色,纯粹而不失风度,因加以利用便有人与自然交互的美。
〣庭院 COURTYARD
如同盛夏的光阴,落在院子里的树阴,随风漫舞的白色纱缦,透过客厅的落地窗,外面那一片郁郁葱葱。日复一日年复一年与家人与自己细细体验生命带给我们的每一分每一秒。
于是便将空间公区以全开放的方式设计,可开合的中西厨隔断、书房兼客房的隐藏大移门,用一切可以自由的方式来模糊空间界限,让更多的光与景引入室内。
〣餐厅 RESTAURANT
因贪恋窗外那一抹光线与绿荫,我们将落地窗之间的墙体做成了黑色,让它尽可能的"消失",并将庭院处的金属围墙做成白色,让更多的光线可以反射入室内。无论是餐吧就餐还是客厅小憩,视线所及都是美。
〣餐厅RESTAURANT
餐厨因客厅的关系显得狭小,在与主人沟通并得认可后,果断地去掉传统的餐桌,将原来中厨房扩展到餐厅,加大厨房高柜,不仅能容纳更多的电器设备也达到了收纳分类的述求。以满足当代餐厨社交文化的需求,将烹饪与就餐变成家人分享交流的空间。
〣客厅 LIVING ROOM
在餐厨空间得到释放后,原本狭小的客厅空间得以延展。将适当比例的沙发茶几等家具,设定成围座式客厅感受,放弃官方接待式客厅的“大气”,回归初心,打造交流互动的居家体验。
〣书房 STUDY
为进一步的释放一楼公共区域,我们选择摒弃了传统客房,将书房门与外卫门做隐藏式处理,当书房的移门拉出时,便隔绝了公区与书房、客房的私密需求;喜欢宽敞,不喜欢太多的门,所以连外卫的门也一起消失做成隐形门。符合我们一惯的简洁理念,任何功能性物件当需要之时出现,不需要时隐藏,让空间穿行更自由。
〣楼梯间 STAIR CASE
楼梯是一个空间的灵魂之美,也是贯穿二楼与地下负一层的桥梁,所以需要将它设计的再理性一点,再通透一些。灰玻扶手,悬空踏下的灯光,便以让更多的光与风可以引入负一层,穿过二楼的通道,让空间变的更轻。
扶梯而上,为了让二层的通道变的更简单点,把三房一卫的门与墙体融合一体,极简门的质感与墙体的艺术漆一起订制,让空间更通透更干净。
〣主卧 MASTER BEDROOM
轻推主卧的门整个主卧空间的色调呈现出优雅的一致性,浅色地板温润的肌理搭配家具让现代感的曲线元素得到了很好的诠释。
通过试衣帽间,原本就不太富裕的尺寸,在中间设计了一个通透的玻璃衣柜解决了采光,又释放了衣帽间与卧室的空间。
〣主卫 ADCOCATE TOILET
喜欢独立如厕室与淋浴,即使是夫妻也需要一定的私密感。将如厕柜设计成小格式,每一处都可收纳所需,淋浴座櫈可以更安全舒适的冲凉。
〣女儿房 DAUGHTER‘SROOM
一片纯净下,仿佛世界就此静止,让心也随之变得平和起来。当宁静与舒适在同一时空融合,再配合空间感的布局,让女儿房仿佛被幻化成无瑕疵的完美世界。
〣休闲室 LEISURE ROOM
负一楼的采光井是室内与室外交流的唯一“结界”,于是我们在采光井下的墙面设计了高光的折面造型,定性取名为“反光器”。让光线可以在这里无限的与周围墙面形成折射,增加地下空间的自然体验感。
〣休闲室 LEISURE ROOM
会客间、影音区、水吧台、茶区等功能尽可能的做开放融合布局,解决地下空间的幽闭感,赋予家庭娱乐接待的社交需求。加长的茶桌让品茶与书桌、吧桌的功能融为一体,让交流变得更近一些。
〣玄关 PORCH
负一楼的玄关是家庭成员的日常主通道,在这里设计了超大的鞋柜、置物柜、换鞋座櫈;归家,卸下压力的“武装”,与爱的人,享受内心真正的洒脱与安宁。
以简单、纯粹为追求,感官上简约整洁、品味和思想上更为优雅。源源不断的艺术,纯净利落;通过通透或半通透的设计,探寻更多的互动体验,增强空间趣味性,使空间的气息能在不同的界面之间游走。www.StoneSM.co
点赞 526 写留言
0/100
