请选择你所在的地区
- 省份
- 城市
- 江西
- 香港
- 澳门
- 台湾
- 北京
- 上海
- 天津
- 重庆
- 河北
- 山西
- 河南
- 辽宁
- 吉林
- 黑龙江
- 内蒙古
- 江苏
- 山东
- 安徽
- 浙江
- 福建
- 湖北
- 湖南
- 广东
- 广西
- 四川
- 海南
- 贵州
- 云南
- 西藏
- 陕西
- 甘肃
- 青海
- 宁夏
- 新疆
安卓下载
苹果下载
用花岗岩制作外墙的住宅,简约大气
2021-09-27
墨尔本建筑事务所
一眼望去,这栋位于墨尔本的三层住宅便给人以轻盈的印象。阳光在花岗岩外立面上的折射,令建筑如同在场地中轻轻浮起。这似乎与重达260吨的花岗岩特性不符。
然而巧妙的设计与材料的细节把控,让这种看似反常理的事件成为可能。材料的天然龟裂纹理模糊了材料堆叠的硬性线条。这座看似坚硬的庞然大物,就这样以优雅的姿态,静静的栖身于周围环境之中。
轻盈的住宅外貌
富有质感的材料纹理
建筑的永久性结构为空间内部营造了明亮开阔的环境,客厅灵活推拉的大门,将室内空间与户外庭院良好互通。该住宅设计让那些从大住宅中逃离出来的居住者,重新寻回对居住生活本身的关注。
相比于其他住宅空间,该建筑更注重于一对夫妻所有者的生活和习性。配套齐全的大型卧室套房连接日式隐蔽花园中的户外淋浴。
此外,共享的工作空间,和作为配套的儿童房让住宅更加充实。种种功能细节设计让这栋城市住宅与众不同。
客厅与户外庭院良好互通
建筑的内外空间共使用了三种不同的花岗岩材料。因此,平衡各种花岗岩材料在室内外的使用数量便显得尤为重要。
建造商和泥瓦匠的雕琢造就了建筑的精致细节,在此之上,设计师仅需对细节的处理增加一些微小的变化,材料整体所呈现的质感和契合的空间功能便表现出大大的不同。
除此之外,一些特别的功能空间则需要设计师与制造商的密切协调 ,以保证该功能部件可以更好的融入到住宅空间。如套房洗手间里的定制浴盆。
建造商和泥瓦匠的雕琢造就了建筑的精致细节
洗手间
住宅设计呼应全局,将室内设计与花园配景相结合。户外花园中的绿植分层规划,私人篱笆外墙与建筑外侧街道之间种植灌木以保证建筑的私密性。
厨房与客厅将居住者的视线引向园内的低维护植被。花园规划满足了居住者的需求与愿望。
户外庭院
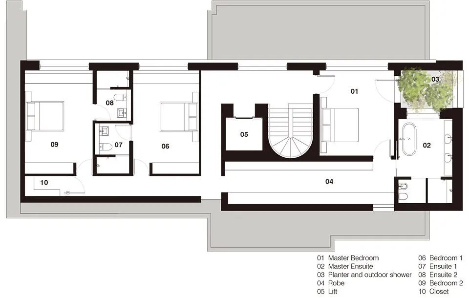
▲底层平面图
▲二层平面图
▲地下层平面图
点赞 669 写留言
0/100
