Hi~欢迎来到陶石汇!
北京

请选择你所在的地区

  • 省份
  • 城市
  • 江西
  • 香港
  • 澳门
  • 台湾
  • 北京
  • 上海
  • 天津
  • 重庆
  • 河北
  • 山西
  • 河南
  • 辽宁
  • 吉林
  • 黑龙江
  • 内蒙古
  • 江苏
  • 山东
  • 安徽
  • 浙江
  • 福建
  • 湖北
  • 湖南
  • 广东
  • 广西
  • 四川
  • 海南
  • 贵州
  • 云南
  • 西藏
  • 陕西
  • 甘肃
  • 青海
  • 宁夏
  • 新疆
请先选择省份
安卓下载 苹果下载
全国统一服务热线 400-0658-029 133-0925-8589

首页 > 资讯 > 详情

石材干货丨安装常见构造、方法及用料

2022-07-07

石材凭借着
与生俱来的细腻质感以及自然形成独一无二的天然纹理经常被应用于室内外装饰本文为大家介绍室内外常用石材施工结构及用料

01.地面水泥铺贴

地面水泥铺贴常见于室内地面、楼梯室外庭院、拼花地面等

地面石材铺贴结构图

运用材料:水泥、沙(1:3干湿性砂浆)结构要点:大理石板底使用1:3干湿性砂浆粘接原有混凝土层安装完成后原水泥地面层到大理石完成面≥50mm适用于地面、楼梯的石材铺贴水泥砂浆调配大理石地面安装

02.墙面胶泥铺贴

墙面胶泥铺贴常用于卫生间墙面以及厨房墙面因为这两个区域比较潮湿所以最好不用干挂及点挂结构

墙面石材胶泥铺贴结构图

运用材料:膨胀螺栓/硬木木楔1:3水泥砂浆石材专用粘接剂(胶泥)石材湿贴防脱落挂件石材专用粘结剂(胶泥)石材湿贴防脱落挂件施工注意事项:1、石材背后需使用专用粘结剂连接,厚度3mm左右2、浅色石材(米黄/白色)需使用白水泥混合砂浆3、有门窗的墙面必须把门窗框立好,位置准确,并应垂直和牢固,并考虑安装石材时尺寸有足够的预留尺寸。同时用1:3水泥砂浆将缝隙塞严实4、安装空间需做好防水防漏水处理

03.木板基底结构石材铺贴

木板基底结构常见于欧式/中式造型背景墙如玄关、电视背景等空心砖、泡沫砖宜用木板基底结构

墙面石材木板基底结构图

运用材料:自攻螺丝石材干挂AB胶石材专用云石胶结构胶、铜线木板基底背景墙安装

04.拉爆点挂安装结构

与木板基底结构应用相似常用于室内背景墙使用石材点挂占用空间较小混凝土墙、实心墙宜用拉爆点挂

拉爆点挂安装结构

运用材料:膨胀螺栓、AB胶、L形角码石材点挂AB胶固定位置石材点挂剖面视图施工要点:在混凝土基底打入膨胀螺栓石材背面开小孔使用干挂胶填充用开孔点和墙面的固定螺栓进行粘接

05.挂件拉爆点挂

挂件拉爆点挂是基于拉爆点挂的基础为石材增加固定的挂件同样常用于室内背景墙的安装

挂件拉爆点挂结构

石材点挂(平板飘扣)石材点挂(蝴蝶飘件)运用材料:膨胀螺栓、AB胶、L形角码石材干挂专用飘件石材干挂飘件石材专用挂件施工注意事项:1、使用干挂飘件时,水平缝位置为拉槽处理工艺,施工工艺干挂飘件在平缝的上下各下飘件2、使用蝴蝶挂件时,需要在板底背后粘接石材增加厚度,便于挂件的开槽安装

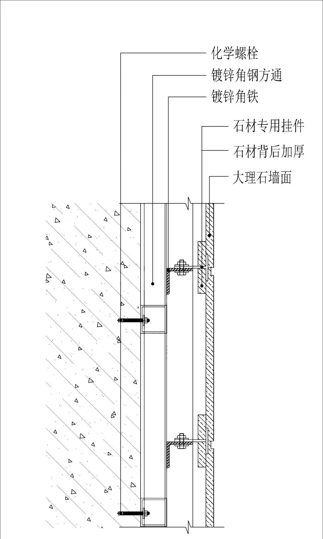
06.钢结构基底安装

外焊钢结构

就是使用角铁和槽钢作为支撑骨架

表面石材的受力全部都在钢架上

架子上焊接加螺丝加固成一体

用膨胀螺丝连接基层

干挂专用挂件及干挂胶连接石材

这种做法常见于户外幕墙


钢结构基底安装结构图

运用材料:不锈钢膨胀螺栓、石材专用挂件云石胶、干挂AB胶槽钢主龙骨、角钢次龙骨户外钢结构框架钢结构石材安装图钢结构石材安装优点:外墙的干挂均使用钢结构作为固定稳定性可以承受强震等自然灾害比起其他方式,钢结构安装更耐用

精选留言

点赞 821 写留言

0/100

友情链接
陶石汇 安卓
陶石汇 苹果
超级找客 安卓
超级找客 苹果