请选择你所在的地区
- 省份
- 城市
- 江西
- 香港
- 澳门
- 台湾
- 北京
- 上海
- 天津
- 重庆
- 河北
- 山西
- 河南
- 辽宁
- 吉林
- 黑龙江
- 内蒙古
- 江苏
- 山东
- 安徽
- 浙江
- 福建
- 湖北
- 湖南
- 广东
- 广西
- 四川
- 海南
- 贵州
- 云南
- 西藏
- 陕西
- 甘肃
- 青海
- 宁夏
- 新疆
安卓下载
苹果下载
200平的房子,打通客餐厅做大平层通透横厅,住进去太享受了
2025-10-27
设计理念:这是一套现代简约风格的装修案例。本案居者是一对恩爱夫妇,有着两个可爱的女儿,希望可以在装修方面建立与孩子互动的【家庭亲子空间】。设计师结合业主需求及家庭人员结构,将原有空间合理化利用,整体空间以灰白色为主基调,加入木饰面等自然材质,淡雅的色系将空间的简约之美展现。
案例简介
面积:208㎡
户型:四居室
风格:现代简约
往下 看完整案例
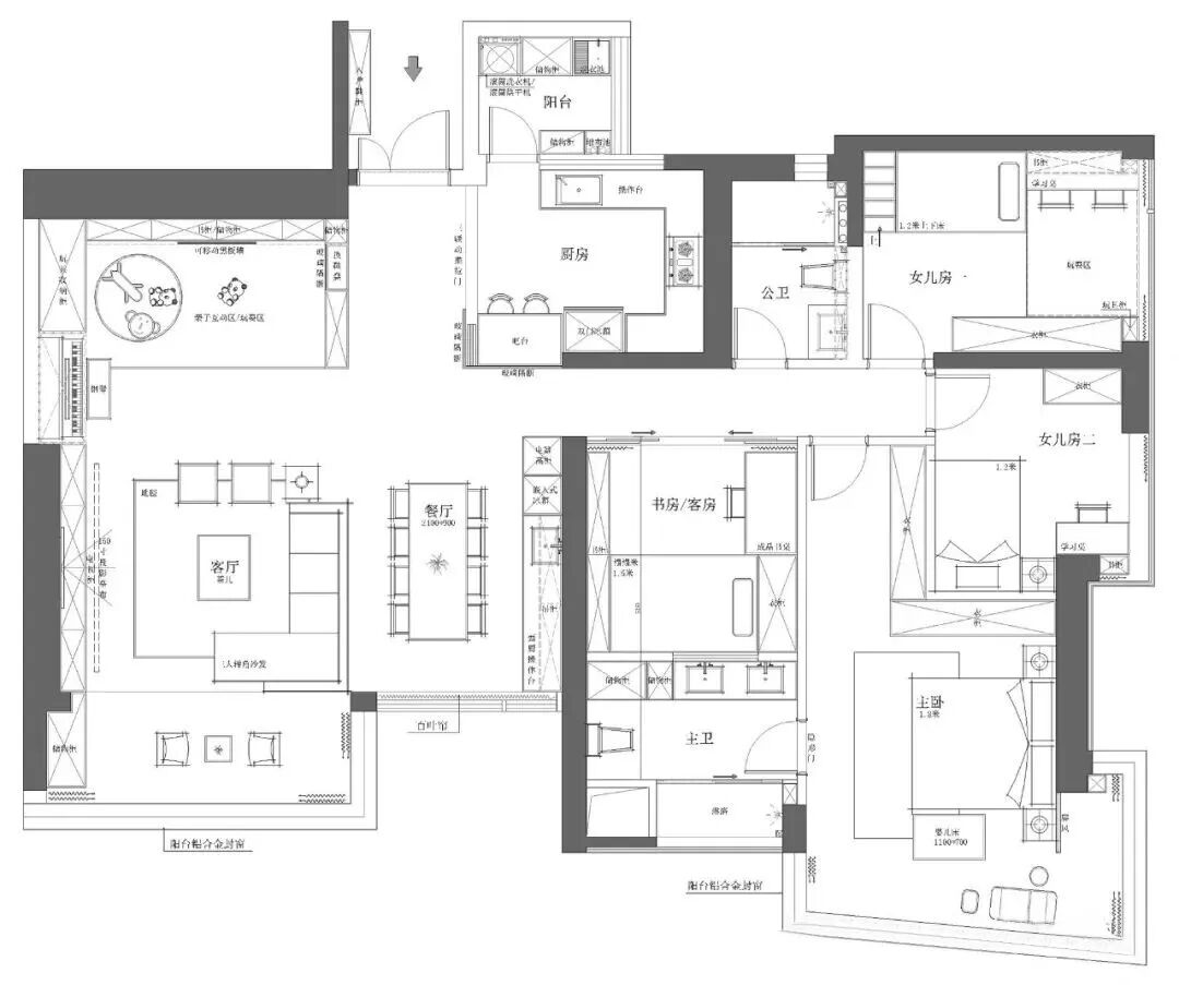
01
平面布置图
▲ 平面布置图:
①本案将“动”区与“静”区做最大化分区,主要活动空间集中在客厅,以便随时参与孩子互动;
②客餐一体化布局,大横厅设计将通风、采光贯穿于动线,方便家人之间交流感情;
③两个阳台打通,生活阳台融入厨房空间,休闲阳台融入到客厅。
02
玄关空间设计
▲ 玄关,链接进入房间的第一视角,定制一组原木色多功能柜设计,利用柜体的深度,打造换鞋凳+玻璃隔墙组合,为入门空间带来温暖与便利。
▲ 从玄关望向客餐厅空间,三个区域不做隔断,空间顺畅无阻,阳光直照屋内每个角落,让自然光线拥有强烈的穿透感。
03
客厅空间设计
▲ 客厅,纳入阳台做横厅式布局,无主灯吊顶放大空间视觉感,整面大落地窗带来充足的自然采光,勾勒出现代且自由的生活空间。
▲ 居中摆放一套休闲布艺沙发,通顶式定制柜的设计,集无拉手收纳柜+开放式展示柜于一体,实现多样储物,完美利用电视背景墙空间。
▲ 靠近阳台一侧打造一列开放格,阳台区域以木饰面吊顶,再挂上浅灰色的布艺窗帘,两只兔子座椅童趣俏皮,增添室内温馨氛围感。
04
餐厅空间设计
▲ 餐厅位于沙发后侧,与客厅平分整个空间,充分利用采光面大的优势,沿墙打造整排餐边柜,以独具简约现代的格调撩拨着视觉感受。
▲ 选择现代风餐桌椅搭配造型吊灯,整体以柔和奶茶色为主,以兼具西厨功能的餐边柜为餐厅背景,左侧高柜内嵌入蒸烤箱和隐形冰箱。
▲ 从阳台望向客厅视角,尽头一端打造亲子互动区,内嵌的满墙开放式书墙,兼具收纳和展示功能,给孩子更加自由自在的玩耍空间。
05
厨房空间设计
▲ 厨房,配色设计注重舒适和现代感,低调且含蓄,U型台面布局,冰箱边上新增吧台区,展现厨房的收纳能力和流畅的操作动线。
06
客卫空间设计
▲ 整体以浅灰色的瓷砖通铺,定制加长浴室柜延伸至马桶上方,浴室镜中间嵌入开放格,增加储物空间,空间显得简约精致而实用时尚。
07
女儿房空间设计
▲ 女儿房,粉白色拼合的上下床温柔又精致,连楼梯都是深浅搭配的粉色,靠墙定制一整排大衣柜满足收纳,搭配成一个可爱纯净的女孩房。
08
主卧空间设计
▲ 主卧,床头运用木饰面+白色硬包背景板,格栅元素增添空间层次感,将阳台空间打通并入,落地窗前装竖百叶帘,提高全屋的采光和视野。
▲ 床侧定制顶天立地大衣柜,结合黑玻柜门嵌入灯带,床尾设计主卫隐形门,保持室内完整性,营造出极简又高级的氛围感。
09
主卫空间设计
▲ 主卫,定制双人个性台盆设计,提高生活效率,新增木色储物柜补充收纳,内部嵌入灯带点缀温暖柔和的空间氛围。
点赞 14 写留言
0/100
